Характеристики продукта:
Вибрационный грохот в форме банана GXS включает в себя: корпус грохота, вибратор, систему передачи, основание, пружинную систему, сетку грохота, двигатель, блок управления и все другие устройства.
Описание функций:
Вибрационный грохот в форме банана GXS представляет собой линейный вибрационный грохот с вибратором коробчатого типа и несколькими поверхностями грохота, расположенными под разными углами наклона. Грохот в форме банана. Он в основном используется для определения размера частиц крупных и средних материалов с высоким содержанием мелких частиц (мелкие частицы – это частицы размером менее половины размера отверстия сита). Он имеет простую конструкцию, стабильную производительность, бесперебойную работу и прост в обслуживании, ремонте и проверке.
Вибрационный грохот в форме банана GXS разработан с использованием запатентованной технологии, которая объединяет многосегментную поверхность грохота в форме банана в линейный вибрационный грохот. В конце подачи имеется большая наклонная поверхность грохота, которая затем постепенно опускается под определенным углом, пока не достигнет отверстия для выгрузки. Наклонная поверхность грохота на конце подачи позволяет большему количеству материала проходить через поверхность грохота при более высокой скорости просеивания и более тонкой стратификации материала. Поскольку крупные куски материала быстро проходят через крутой склон, такое раннее расслоение позволяет более мелким частицам быстрее приближаться к поверхности грохота и относительно беспрепятственно проходить через зазоры. Таким образом, вибрационный грохот в форме банана обладает чрезвычайно высокой эффективностью просеивания и производительностью, в 1,5-2 раза превышающей производительность традиционных сортировочных грохотов.
Области применения и особенности:
Вибрационный грохот в форме банана представляет собой линейный вибрационный грохот с вибратором коробчатого типа и несколькими секциями грохота, расположенными под разными углами наклона. Грохочущий блок имеет форму банана. Он в основном используется для классификации по размеру частиц крупных и средних материалов с высоким содержанием мелких частиц. Его также можно использовать для обезвоживания, обесшламливания и дегидратации воды (мелкие частицы – это частицы размером менее половины отверстия сита).
Вибрационный грохот в форме банана разработан с использованием запатентованной технологии, которая объединяет многосегментную поверхность грохота в форме банана в линейный вибрационный грохот. На конце подачи имеется большая наклонная поверхность грохота, которая затем постепенно опускается под определенным углом, пока не достигнет отверстия для выгрузки. Наклонная поверхность грохота на конце подачи позволяет большему количеству материала проходить через поверхность грохота при более высокой скорости просеивания и более тонкой стратификации материала. Поскольку крупные куски материала быстрее проходят через крутой склон, такое раннее расслоение позволяет более мелким частицам быстрее приближаться к поверхности грохота и относительно беспрепятственно проходить через зазоры. Таким образом, вибрационный грохот в форме банана обладает чрезвычайно высокой эффективностью просеивания и производительностью, в 1,5-2 раза превышающей производительность традиционных сортировочных грохотов.
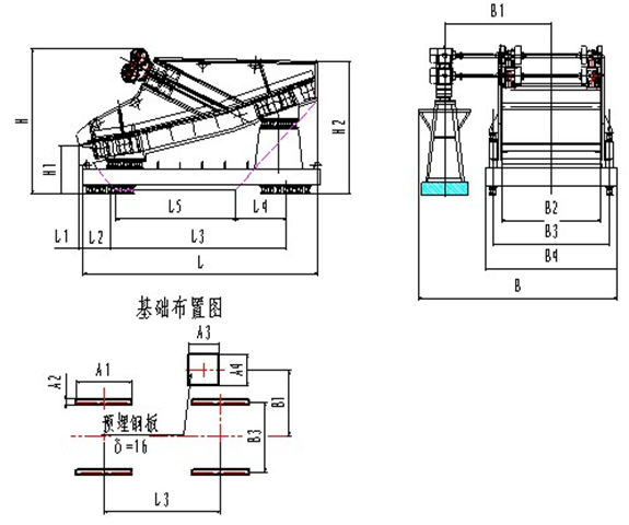
Внешние размеры установки:
Параметры/примеры из практики
Таблица технических параметров грохота для бананов и внешних монтажных размеров:
| 型号 | 筛面面积 m2 |
给料粒度 mm |
处理量 t/h |
筛面倾角 | 筛孔尺寸 mm |
双振幅 mm |
电压 V |
功率 KW |
| GXS1560 | 9 |
≤300 |
80-400 | 5o-25o
5 |
5-50 |
8-12 |
380 |
2×11 |
| GXS2060 | 12 | 110-500 | 2×15 | |||||
| GXS2560 | 15 | 130-650 | 2×18.5 | |||||
| GXS3060 | 18 | 160-750 | 2×22 | |||||
| GXS3073 | 21.9 | 190-800 | 2×30 | |||||
| GXS3642 | 15.12 | 130-650 | 2×15 | |||||
| GXS3660 | 21.6 | 200-800 | 2×22 | |||||
| GXS2590 | 22.5 | 200-800 | 2×22 | |||||
| GXS3090 | 27 | 240-1100 | 2×30 | |||||
| GXS3690 | 32.4 | 300-1350 | 2×37 |